Set in the heart of magical Mysterton, this spacious two-bedroom, two-bathroom ground-floor unit offers a rare combination of privacy, convenience, and tranquil park-side living. Positioned at the rear of a boutique complex of only two, it overlooks the leafy expanse of Mindham Park - giving you cooling breezes and a peaceful backdrop all year round.
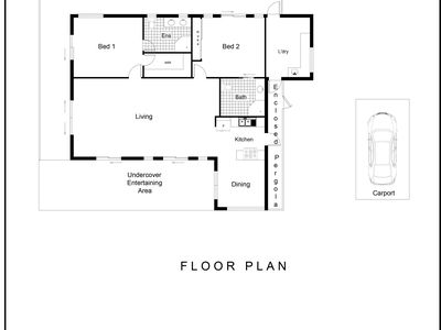
Inside, the home features an enormous lounge with a separate dining area, creating a generous and flexible living space. The well-designed kitchen includes a servery, ample bench space, and excellent storage, making everyday living simple and enjoyable.
Both bedrooms are light-filled and well-proportioned. The main bedroom features a large walk-in robe, ensuite, and split-system air-conditioning, while the second bedroom includes built-in wardrobes.
Outdoor living is a standout, with a full-length lattice-enclosed patio providing secure, breezy relaxation, plus a paved front patio - the perfect spot for your morning coffee overlooking the park. A single carport and large laundry complete this low-maintenance package.
This is one of Townsville's most tightly held suburbs - quiet, leafy, and incredibly central. From this peaceful rear-positioned unit, you're just minutes to the Mater Hospital, Castletown Shopping Centre, parks, transport, schools, and the CBD.
Enjoy the feeling of a private home without the ongoing maintenance, all in a location that's loved for its convenience and charm.
A rare opportunity in highly sought-after Mysterton - perfect for downsizers, professionals, and investors seeking lifestyle, privacy, and low-maintenance living.












